Tel. 07251 3215830

Alexander Doll Immobilien GmbH
Kübelmarkt 20 I 76646 Bruchsal

UNSER IMMOBILIEN-ANGEBOT

Modernes Wohnen mit Wohlfühlfaktor! Traumhafte 4-Zimmer-Wohnung mit Garten, Terrasse und Stellplatz

TitelbildWHG_3
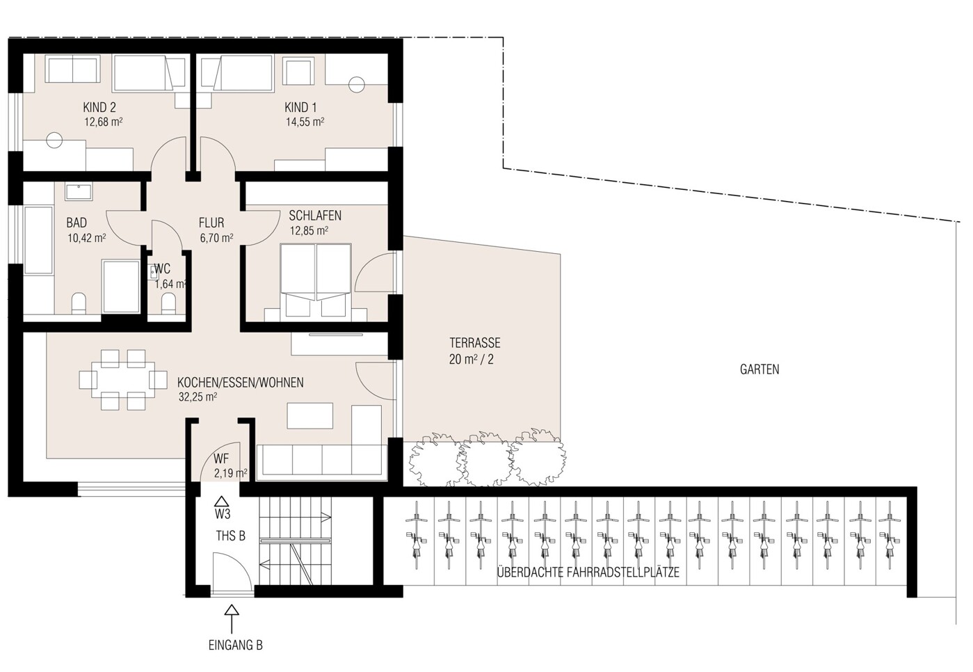
Grundriss
Kurzinformation
ImmoNr
Doll-Kronau-25_3
Objektart
Wohnung
Objekttyp
Etagenwohnung
Nutzungsart
Wohnen
Vermarktungsart
Kauf
PLZ
76709
Ort
Kronau
Wohnfläche
ca. 103 m²
Anzahl Zimmer
4
Anzahl Badezimmer
1
Kaufpreis
530.000,00 €

Beschreibung

Diese großzügig geschnittene 4-Zimmer-Wohnung vereint modernes Design, durchdachte Raumaufteilung und höchsten Wohnkomfort - perfekt für Paare und Familien, die Wert auf gute Wohnqualität und Stil legen.

Beim Betreten der Wohnung gelangen Sie zuerst in den Windfang. Von hier aus öffnet sich der lichtdurchflutete Wohn- und Essbereich mit offenem Küchenbereich - der ideale Mittelpunkt Ihres Zuhauses. Der Wohnbereich ermöglicht Ihnen den direkten Zugang zur Terrasse mit angrenzendem Garten - ein herrlicher Ort zum Entspannen, Genießen und Wohlfühlen. Über einen Flur erreichen Sie die drei weiteren, gut geschnittenen Zimmer, die sich flexibel als Schlaf-, Kinder-, Gäste- oder Arbeitszimmer nutzen lassen. Eines der Schlafzimmer verfügt zudem über einen eigenen Zugang zur Terrasse und Garten. Das Tageslichtbad überzeugt mit moderner Ausstattung, Badewanne und Dusche, während das Gäste-WC zusätzlichen Komfort bietet.

Ausstattung

- 4-Zimmer-Wohnung
- geräumiger Wohn-/Essbereich mit offenem Küchenbereich
- Tageslichtbad mit Badewanne und bodenebener Dusche
- zusätzliches separates WC
- große Terrasse mit Gartenanteil
- Personenaufzug
- eigener Kellerraum
- Wasch-/Trockenraum
- ein PKW-Stellplatz
- überdachte Fahrradabstellplätze

Sonstige Angaben

Der Energieausweis wird Ihnen zum gegebenen Zeitpunkt nachgereicht.

Lage

Kronau liegt verkehrsgünstig zwischen den Großstädten Heidelberg (ca. 22km), Karslruhe (ca. 29km) und Mannheim (ca. 32km). Die optimale Lage, nur wenige Fahrminuten von der A5 entfernt, ermöglicht eine gute und recht rasche Erreichbarkeit mehrerer größerer Städte. Die Gemeinde selbst überzeugt durch ein aktives Vereins- und Gemeinschaftsleben und eine gute Infrastruktur wie zum Beispiel: Grundschule, Kindergarten, medizinische Versorgung und Einkaufsmöglichkeiten. Im Ortskern finden sich kleinere Geschäfte wie ein Bäcker, Metzer oder ein Café. Am Ortsausgang Richtung A5 befindet sich zudem ein Areal mit verschiedenen größeren Geschäften.

In der Nähe der Schillerstraße sind mehrere Bushaltestellen fußläufig erreichbar, da Kronau über ein gut ausgebautes Nahverkehrsnetz verfügt. Von hier bestehen regelmäßige Busverbindungen nach Waghäusel, Bad Schönborn und zu den Bahnhöfen der Region. Die nächste Bahnstation ist der Bahnhof Bad Schönborn-Kronau, der nur knapp zwei Kilometer entfernt liegt. Von dort gibt es S-Bahn und Regionalzuganbindungen in Richtung Karlsruhe, Mannheim, Heidelberg und Bruchsal. Damit sind sowohl innenörtliche Ziele, als auch Großstädte der Region schnell erreichbar.

Die direkte Lage und Umgebung des geplanten Neubau-Wohnhauses zeichnen sich durch eine ruhige und familienfreundliche Wohngegend aus. Die Schillerstraße ist Teil eines etablierten Wohngebiets. Die Umgebung ist geprägt von gepflegten Häusern, einem angenehmen dörflichen Charakter und nachbarschaftlichem Miteinander.

Im Umkreis bieten einige Seen und große Waldflächen die perfekte Erholung in der Natur

Dieses Neubauprojekt ist attraktiv für Menschen, die Naturverbundenheit und Ruhe suchen. Familien mit Kindern finden hier ein passendes Umfeld und für alle, die auf eine gute Anbindung an das Nahverkehrsnetz oder die zentrale Lage zwischen Karlsruhe und Heidelberg angewiesen sind, werden hier ihr neues Zuhause finden.

Ihr Ansprechpartner

Herr Alexander Doll

Telefon

07251 3215830

Direktanfrage

Direktanfrage

Ich interessiere mich für diese Immobilie. Bitte nehmen Sie Kontakt zu mir auf.

Anrede*:
Titel:
Vorname*:
Nachname*:
Straße und Hausnummer*:
PLZ*:
Ort*:
Telefon*:
E-Mail*:
Nachricht:




Die mit (*) gekennzeichneten Felder sind Pflichtangaben.

IMPRESSUM I DATENSCHUTZ 
© Alexander Doll Immobilien GmbH