Tel. 07251 3215830

Alexander Doll Immobilien GmbH
Kübelmarkt 20 I 76646 Bruchsal

UNSER IMMOBILIEN-ANGEBOT

Attraktive, lichtdurchflutete 4-Zimmer-Penthouse-Wohnung mit großer Terrasse und TG-Stellplatz

Ansicht
Hausansicht 1
Hausansicht
Wohnbereich
Essbereich
Küchenbereich
Zimmer 1
Zimmer 2
Badezimmer 1
Badezimmer 2
Gäste-WC
Terrasse
Terrasse - weitere Ansicht
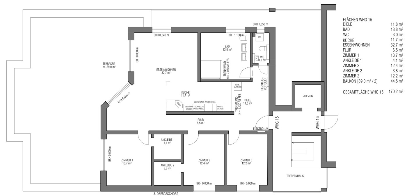
Grundriss
Kurzinformation
ImmoNr
2317
Objektart
Wohnung
Objekttyp
Penthouse
Nutzungsart
Wohnen
Vermarktungsart
Miete
PLZ
77694
Ort
Kehl
Baujahr
2018
Wohnfläche
ca. 170 m²
Anzahl Zimmer
4
Anzahl Badezimmer
1
Endenergiebedarf
56,5 kWh/(m²a)
Energieausweis
Bedarfsausweis
Energieausweis gültig bis
27.05.2029
Energieeffizienzklasse
B
wesentlicher Energieträger
Fernwärme
Stellplatzmiete
50,00 €
Kaltmiete
1.300,00 €
Nebenkosten
300,00 €
Warmmiete
1.650,00 €
Kaution
3.900,00 €

Beschreibung

Diese ansprechende, lichtdurchflutete 4-Zimmer-Penthousewohnung befindet sich auf der obersten Etage eines gepflegten Mehrfamilienhauses mit 16 Wohneinheiten.

Treten Sie ein! Der einladende Dielenbereich bietet ausreichend Platz für Ihre Garderobe und heißt Sie herzlich willkommen. Von hier aus erreichen Sie bequem alle Räume dieser gemütlichen Wohnung. Den Mittelpunkt bildet der offene Wohn- und Essbereich mit angrenzender, offen gestalteter Küche. Der Küchenbereich bietet Ihnen genügend Raum zur individuellen Planung und Gestaltung Ihrer eigenen Einbauküche. Die drei Schlafzimmer verfügen über eine angenehme Größe. Zwei der Schlafzimmer überzeugen sogar mit der eigenen Ankleide. Das Platzangebot wird durch ein Tageslichtbad sowie ein Gäste-WC mit Waschmaschinenanschluss komplettiert. Das Highlight ist hier sicherlich die große Dachterrasse, welche zum Entspannen und Verweilen einlädt.

Ein privates Kellerabteil im Untergeschoss bietet Ihnen praktischen Stauraum für Ihre persönlichen Gegenstände.

Der Waschmaschinenanschluss befindet sich in der Wohnung. Ein Fahrstuhl ist vorhanden.

Für Ihr Fahrzeug steht Ihnen ein Stellplatz in der Tiefgarage zur Verfügung.

Wir freuen uns auf eine Besichtigung mit Ihnen!

Ausstattung

- ein Tageslichtbad mit bodenebener Dusche, Toilette und zwei Waschbecken
- Gäste-WC mit Waschmaschinenanschluss
- große Terrasse
- Fahrstuhl im Haus
- eigenes Kellerabteil
- ein Stellplatz in der Tiefgarage

Lage

Kehl ist eine Stadt im Westen Baden-Württembergs am Rhein gegenüber von Straßburg. Sie ist etwa gleich weit von Karlsruhe (75 Kilometer) im Norden und Freiburg im Breisgau (80 Kilometer) im Süden entfernt.

Die Stadt wird von den Bundesstraßen 28 (von Straßburg über den Schwarzwald (unter anderem Freudenstadt) nach Ulm) und der Landesstraße 75 (von Rastatt nach Lahr/Schwarzwald, ehemals Bundesstraße 36) durchzogen. Über die B 28 ist die Anschlussstelle 54 Appenweier für die Bundesautobahn 5 zu erreichen. Der Bahnhof Kehl stellt den zentralen Verkehrsknotenpunkt Kehls dar. Er liegt auf der Magistrale für Europa, einer Hochgeschwindigkeitsstrecke, welche von Paris über Straßburg, Stuttgart, München und Wien nach Budapest führt. Den öffentlichen Personennahverkehr (ÖPNV) bedienen neben der oben erwähnten Ortenau-S-Bahn und dem Metro-Rhin mehrere Buslinien der SWEG und des DB-Tochterunternehmens SüdwestBus, unter anderem mehrere Stadtbuslinien.

Die Stadt Kehl bietet Ihnen zahlreiche Einkaufsmöglichkeiten des täglichen Bedarfs, sowie Bäcker, Ärzte, Apotheken, Banken, Restaurants und vieles mehr.

Auch an kulturellen Angeboten fehlt es in Kehl nicht, dafür sorgen die Stadthalle mit ihren Theaterdarbietungen, das ausgezeichnete Kinocenter, sowie zahlreiche Museen. Der Kehler Messdi ist mit inzwischen über 50.000 Besuchern jährlich die größte Veranstaltung Kehls. Der Messdi ist ein Volksfest, dessen Angebot aus einer Mischung aus Kultur, Musik und Kulinarischem besteht. Das viertägige Volksfest findet seit über 40 Jahren statt.

Kehl liegt am rechtsrheinischen Teil des Rheinradwegs. Der grenzüberschreitende Radweg zu den Forts führt durch die Ortsteile Auenheim, Neumühl und Sundheim. Ferner führt der Itinéraire cyclable européen (Europäischer Radwanderweg) Molsheim–Strasbourg–Kehl–Offenburg durch Kehl.

Die Ortsgruppe Kehl des Schwarzwaldvereins unterhält im rechtsrheinischen Hanauerland ein Netz von ausgeschilderten Wanderwegen von insgesamt über 100 km Länge.

Ihr Ansprechpartner

Herr Alexander Doll

Telefon

07251 3215830

Direktanfrage

Direktanfrage

Ich interessiere mich für diese Immobilie. Bitte nehmen Sie Kontakt zu mir auf.

Anrede*:
Titel:
Vorname*:
Nachname*:
Straße und Hausnummer*:
PLZ*:
Ort*:
Telefon*:
E-Mail*:
Nachricht:




Die mit (*) gekennzeichneten Felder sind Pflichtangaben.

IMPRESSUM I DATENSCHUTZ 
© Alexander Doll Immobilien GmbH