Tel. 07251 3215830

Alexander Doll Immobilien GmbH
Kübelmarkt 20 I 76646 Bruchsal

UNSER IMMOBILIEN-ANGEBOT

So geht wohnen heute!

Verkauft
Straßenansicht
Hausansicht - Rückseite mit Garten
Großlage
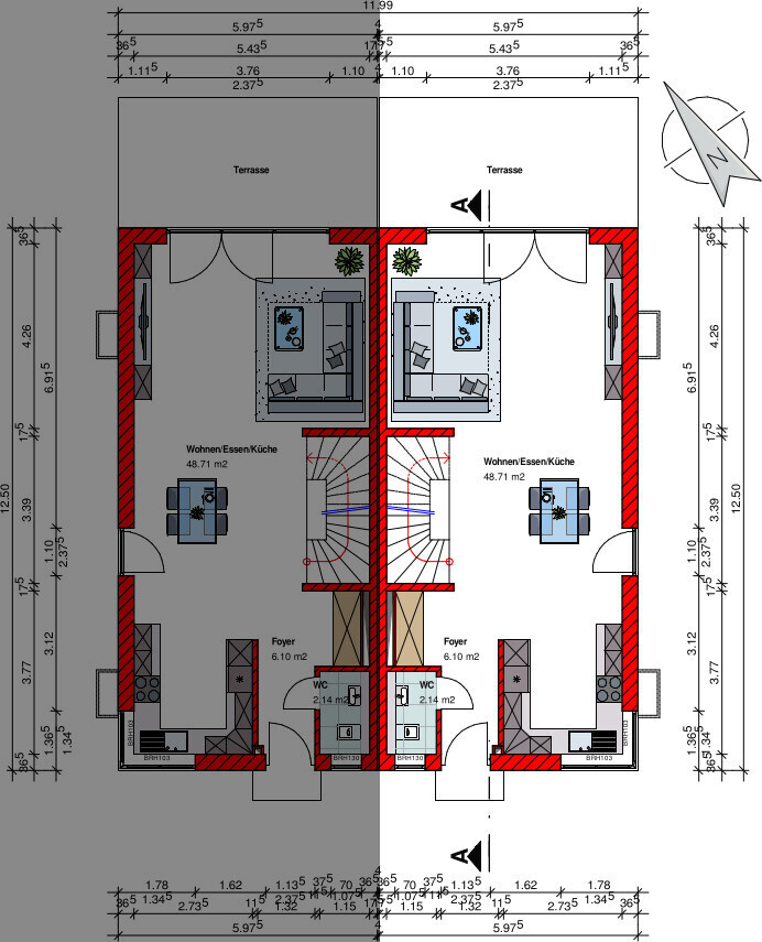
Grundriss - Erdgeschoss
Grundriss - Obergeschoss
Grundriss - Dachgeschoss
Grundriss - Kellergeschoss
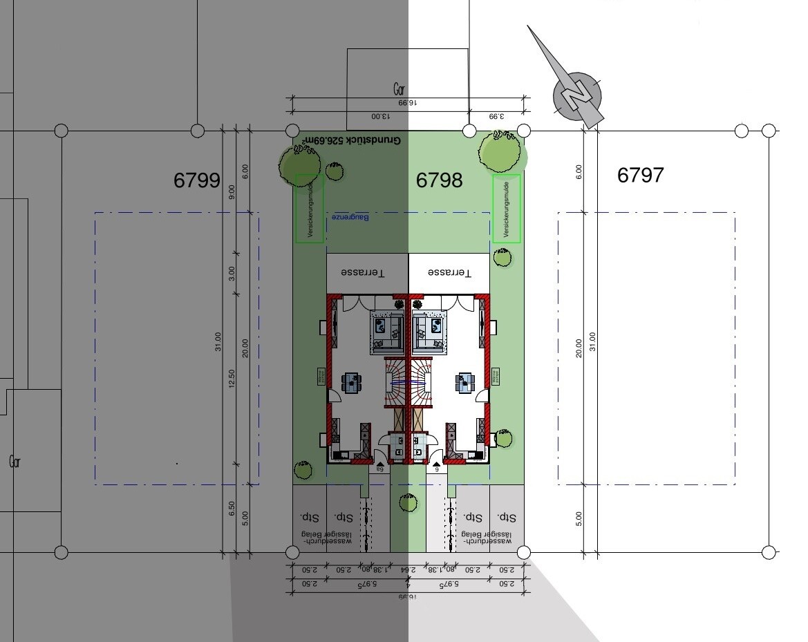
Grundriss (EG) mit Grundstück
Kurzinformation
ImmoNr
2018
Objektart
Haus
Objekttyp
Doppelhaushälfte
Nutzungsart
Wohnen
Vermarktungsart
Kauf
PLZ
76698
Ort
Ubstadt-Weiher
Baujahr
2022
Wohnfläche
ca. 146 m²
Grundstücksgröße
ca. 263 m²
Nutzfläche
ca. 61 m²
Anzahl Zimmer
5
Kaufpreis
verkauft

Beschreibung

Die derzeit noch in Planung stehenden Doppelhaushälften befinden sich in einem ruhigen Wohngebiet von Ubstadt-Weiher (Ubstadt).

Wir möchten Ihnen hier die rechte Doppelhaushälfte vorstellen.

Das Objekt wird in massiver Bauweise hergestellt, verfügt über zwei Vollgeschosse, ein ausgebautes Dachgeschoss und ist vollständig unterkellert. Mit einer Wohnfläche von ca. 146,61 m² sowie einer Nutzfläche von ca. 61 m² im Kellergeschoss verfügt es über ausreichend Fläche zum Wohlfühlen und freien Entfalten.

Der moderne Grundriss im Erdgeschoss überzeugt mit einem großzügigen, offenen Wohn-, Ess- und Kochbereich. Eine Garderobe und ein separates WC runden die Ebene von praktischer Seite ab. Direkt vom Wohnbereich gelangen Sie auf Ihre Südterrasse mit angrenzendem Garten.

Im ersten Obergeschoss befindet sich das Familienbad mit einer separaten Dusche und Badewanne. Die beiden Kinderzimmer sowie das Schlafzimmer bieten Ihnen aufgrund des guten Zuschnitts viele Möglichkeiten für Ihre individuelle Einrichtung.

Im Dachgeschoss entsteht ein geräumiges, helles Studio, welches auch optimal als Arbeitszimmer genutzt werden kann. Modern gestaltet bietet es sich als Loungebereich zum Entspannen, funktional eingerichtet als Fitnessraum oder Spielparadies für die Kleinen an. Die Möglichkeiten sind nahezu unbegrenzt und so bietet dieser Bereich für wirklich jeden Bedarf die passende Räumlichkeit.

Viel Platz und Stauraum finden Sie im Kellergeschoss. Neben dem Wasch- und Trockenraum stehen Ihnen gleich zwei weitere Kellerräume zur individuellen Nutzung zur Verfügung.

Ausstattung

Bis auf Maler-/Tapezierarbeiten und den Bodenbelagsarbeiten ist das Haus nach der Fertigstellung einzugsbereit. Dreifach verglaste Kunststofffenster, Fußbodenheizung im Erd-, Ober und Dachgeschoss sowie eine moderne Luft-Wasser-Wärmepumpe gehören zum Hausstandard. Die Außenanlage mit zwei Stellplätzen und Wegen zum Haus können auf Wunsch gegen einen Aufpreis hergestellt werden.

Sonstige Angaben

Weitere Einzelheiten besprechen wir sehr gerne in einem persönlichen Gespräch.
Nach terminlicher Vereinbarung haben Sie zudem die Möglichkeit gemeinsam mit uns das Objekt zu besichtigen.

Wir freuen uns auf Ihre Anfrage!

Lage

Ubstadt-Weiher liegt direkt am schönen Kraichgau in der Rheinebene. Ubstadt-Weiher mit rund 12.840 Einwohnern ist mit seinen Ortsteilen Ubstadt, Weiher, Stettfeld und Zeutern verkehrsgünstig zwischen den Ballungszentren Karlsruhe und Heidelberg/Mannheim gelegen. Die Bundesstraße 3 verbindet den Ort mit dem überregionalen Straßennetz. Die Autobahnanschlüsse Bruchsal und Kronau zur A5 sind jeweils innerhalb von 10 bis 15 Minuten zu erreichen. Am Bahnhof Ubstadt-Weiher an der Baden-Kurpfalz-Bahn halten die Linien S3 und S4 der S-Bahn Rhein-Neckar. Sie stellen Verbindungen nach Bruchsal, Karlsruhe, Germersheim und Heidelberg her.

Einrichtungen des täglichen Bedarfs sowie Grundschule und Kindergarten sind vorhanden.

Am Rande des Kraichgaus sind Freizeitaktivitäten wie Radfahren in der Rheinebene, Wandern, Schwimmen im Freizeitzentrum Hardtsee und vieles mehr im Angebot.

IMPRESSUM I DATENSCHUTZ 
© Alexander Doll Immobilien GmbH